Welcome to the Onshape forum! Ask questions and join in the discussions about everything Onshape.
First time visiting? Here are some places to start:- Looking for a certain topic? Check out the categories filter or use Search (upper right).
- Need support? Ask a question to our Community Support category.
- Please submit support tickets for bugs but you can request improvements in the Product Feedback category.
- Be respectful, on topic and if you see a problem, Flag it.
If you would like to contact our Community Manager personally, feel free to send a private message or an email.
Best Practice - Splitting this "Group of Parts" into part studios?
elijahpekaar
Member Posts: 12 PRO
Goodmorning,
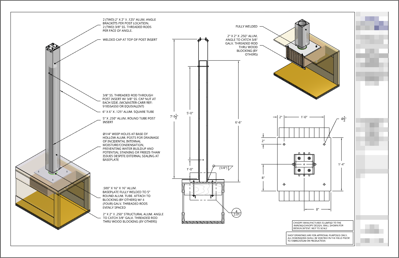
I have done some research on best practice for using separate part studios versus using a singular studio with multiple part bodies but I have only grown more confused on what would work best in my case. My company builds architectural canopies. We also build trellis-style structures and freestanding canopies. Most of what we do is custom to a certain degree, but some products can definitely be automated. My goal is to take our most basic products and completly automate them using configurations. These products will generate shop drawings that are used by our fabricators and installers. Some common sheets that we have are things like beam layouts, post layouts, footing schedules etc. These sheets are easy to make when I can suppress parts of the assembly and only show the posts for example, while hiding the baseplates.
I recently viewed this livestream listed below:
After viewing that, I would like to take my models to a level similar to this. I am just not sure where to begin. I will include some photos of my products below to give a sense of the complexity I am working with versus the models in the video. Obviously, what I have is much simpler.
In the photos below, both structures use a post assembly that consists of a welded baseplate, a post insert, a post sleeve, and brackets at the top. They both have a different attachment at the ground level, the canopy on the red building is a more unique base design and is not something I plan to configure. My initial assumption is to seperate the post assembly from the top structure, make the post assembly configurable on its own because I may use it across many different projcets. This would include all of those parts mentioned + brackets in the top, different sized footings etc. Then I will make the structure up top depending on what it is.
If I build the post assembly in one part studio, how do I configure this to have views where parts are hidden without destorying the rest of my model? If I need to build each part in a separate part studio, how do I ensure that I can have holes for fasteners in the right place across multiple studios?
Please let me know your experience and what you recommend I do. Thank you



